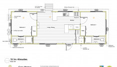
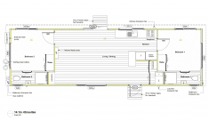
This is an example of Cosy Home floorplans available to you. We have more floorplans available that we have not yet published, so don’t hesitate to ask our friendly staff.
The filter buttons below make it easy to display only the images that interest you.
Choose one ore more option from each group, e.g. 12.1m, 2 Bed, End & Centre Lounge with All Kitchen styles.















